Ombygning, tilbygning og renovering af bygninger
Hos Wiconsult Rådgivende Ingeniør tilbyder vi specialiseret rådgivning inden for renovering, ombygning og tilbygninger af eksisterende bygværker – både til private og erhverv.
Uanset om du ønsker at udvide dit parcelhus med en tilbygning, omdanne butikslokaler eller optimere lagerfaciliteter, står vi klar med teknisk velfunderet rådgivning, der sikrer et trygt og effektivt byggeforløb.
Vores ydelser omfatter bl.a.:
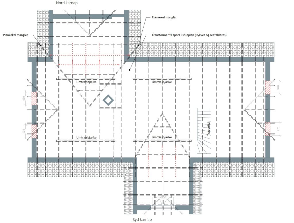
- Statisk dokumentation – beregninger og dokumentation af bærende konstruktioner i forbindelse med ombygning og tilbygning.
- Ansøgning om byggetilladelse – vi udarbejder det nødvendige materiale og håndterer dialogen med myndighederne.
- Teknisk dokumentation – herunder tegninger, beskrivelser og beregninger til brug for både myndigheder og udførende.
- Rådgivning ved renovering – vurdering af eksisterende konstruktioner og forslag til forbedringer og tilpasninger.
- Udvidelse af erhvervsbyggeri – fx lagerhaller, produktionslokaler og butikslokaler med fokus på funktion og fremtidssikring.
Vi arbejder tæt sammen med arkitekter, entreprenører og bygherrer for at sikre, at alle løsninger er teknisk korrekte, lovmedholdelige og tilpasset kundens behov.
Har du et projekt i tankerne? Kontakt os for en uforpligtende samtale – vi hjælper dig sikkert videre med professionel ingeniørrådgivning.
