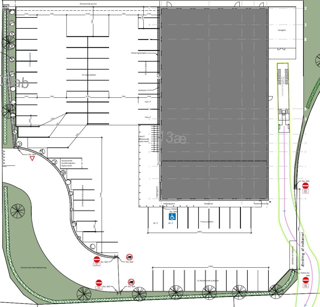
Erhverv
Netto Tilbygning -Lyshøjen 1-8250 Lystrup




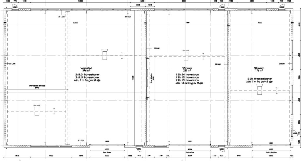
ACJ Maskiner
Maskinehal I Løgumkloster for ACJ Maskiner.
Nybyggeri fra Juni 2025. KK1 Projekt



JHS Industri
22,5 m høj stål hal til industri formål for JHS Industri. Nybyggeri – Maj 2025
KK2 projekt.




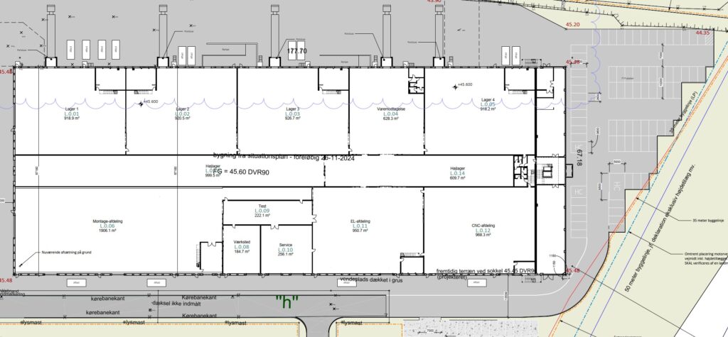
DEN JET
Opførelse af ny lager- og produktionshal udført i betonelementkonstruktion samt tilhørende administrationsbygning i tre etager. Det samlede bygningsareal udgør 11.272 m² og opføres i konstruktionsklasse 3 (KK3). Projektet er projekteret i december 2024



