Renovering
Rømers have2-6, 9400, CC3 , KK3
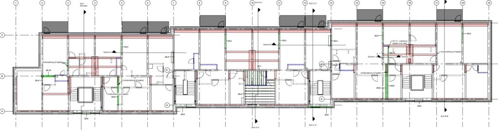
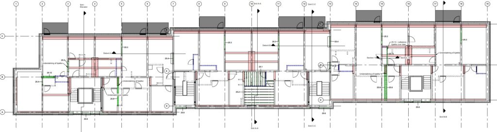
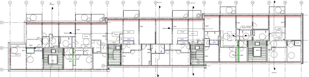
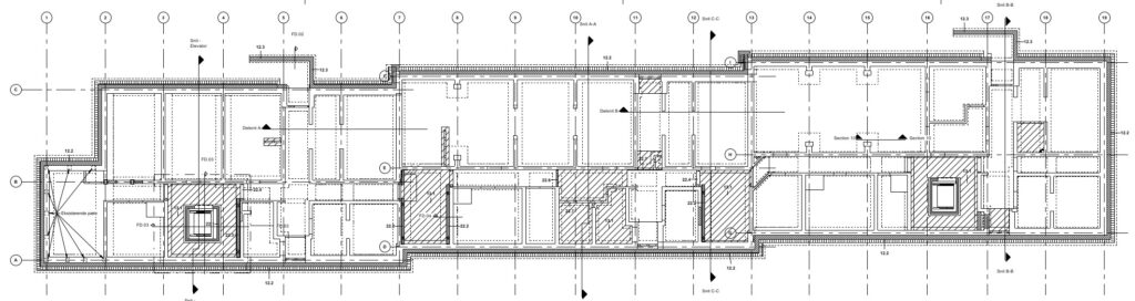
Ombygning af tre boligblokke på seks etager, opført i 1957. Byggeri udføres af entreprenørfirmaet Palissgaard.
Beliggenhed: Rømershave 2-6, Nørresundby, 9400.
Projektet omfattede fjernelse af bærende væg på samtlige etager, etablering af nye døråbninger, installation af nye betonaltanplader fra Hicon, udskiftning af skalmur på bygningens samtlige facader samt forstærkning af det eksisterende fundament.








